
کد دوره 7757
روز های برگزاری
شنبه ها 17 الی 20
دوشنبه ها 17 الی 20
تاریخ شروع:1405/02/21
شهریه:104,000,000 ریال
چنانچه در دوره های ارائه شده نمی توانید شرکت نمایید می توانید شماره موبایل خود را وارد کرده تا دوره های جدیدی که ارائه می شود برای شما پیامک شود
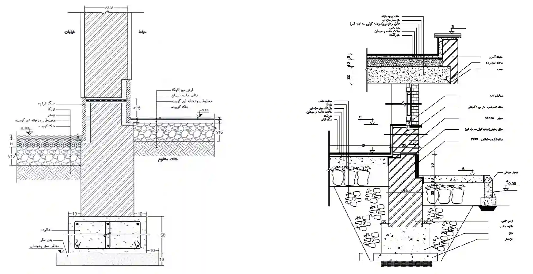
دوره آموزش تهیه نقشههای فاز دو معماری یک دوره آموزشی است که به
دانشجویان و علاقهمندان به حوزه معماری، طراحی داخلی و ساختمانی،
آموزش تکنیکها و مهارتهای لازم برای تهیه نقشههای فاز دو
(Construction Documents) مربوط به پروژههای معماری ارائه میدهد.
نقشههای فاز دو، مرحله اجرایی پروژه معماری هستند و شامل جزئیات
اجرایی و فنی مورد نیاز برای ساخت سازه معماری است.
موضوعاتی که ممکن است در این دوره آموزشی مورد بررسی قرار بگیرند،
عبارتند از :
در این قسمت، نقشههای فاز دو و اهمیت آنها در اجرای پروژههای معماری بررسی میشوند. مفاهیم و اهداف این نقشهها و نقش آنها در ایجاد راهبرد ساختمانی و اجرای صحیح پروژه معماری مورد بحث قرار میگیرند.
در این بخش، نقشههای معماری مورد نیاز برای فاز دو معماری به تفصیل بررسی میشوند. این شامل نقشه پلانها، نقشههای برش، نقشههای نما، نقشههای نمایشگاهی و سایر نقشههای معماری است.
در این بخش، نقشههای مرتبط با سازه مورد بررسی قرار میگیرند. این شامل نقشههای بتنی، فولادی، سیستمهای سازهای و سایر نقشههای مربوط به سازه است.
در این بخش، نقشههای مربوط به سیستمهای برقی و مکانیکی مورد بررسی قرار میگیرند. این شامل نقشههای الکتریکال، روشنایی، گرمایش، سرمایش و سایر سیستمهای مکانیکی است.
در این قسمت، نقشههای مربوط به دکوراسیون داخلی و تجهیزات مورد
بررسی قرار میگیرند. این شامل نقشههای دیوارکشی، کفپوش، نورپردازی
و سایر نقشههای دکوراسیون داخلی است.
هدف اصلی این دوره آموزشی آشنایی دانشجویان با نقشههای فاز دو
معماری است و آموزش مهارتها و تکنیکهای لازم برای تهیه و اجرای این
نقشهها را در اختیار آنها قرار میدهد. با توجه به این دانش و
مهارتها، دانشجویان قادر به تهیه نقشههای فاز دو معماری برای
پروژههای معماری خواهند بود و در صنعت معماری به عنوان یک متخصص فاز
دو معماری فعالیت کنند.
پس از طی کردن دوره آموزش تهیه نقشههای فاز دو معماری در آموزشگاه کامپیوتر مهرگان اصفهان، دانشجویان قادر به انجام فعالیتها و بدست آوردن مهارتها و تواناییهای زیر خواهند بود :
دانشجویان قادر به تهیه نقشههای معماری مرتبط با فاز دو پروژههای معماری خواهند بود. این شامل نقشههای پلان، برش، نما و نمایشگاهی میشود.
دانشجویان با استفاده از استانداردها و قوانین مربوط به تهیه نقشههای فاز دو، قادر به اجرای صحیح و حرفهای نقشهها خواهند بود.
در طول دوره آموزش، دانشجویان با استفاده از نرمافزارهای مهم و پرکاربرد در زمینه تهیه نقشههای فاز دو معماری آشنا میشوند. این شامل نرمافزارهایی مانند AutoCAD، Revit و ArchiCAD میشود.
در دوره آموزش، همکاری و هماهنگی با تیمهای مختلف در فرآیند تهیه نقشههای فاز دو معماری نیز مورد آموزش قرار میگیرد. این شامل توانایی ارتباط و همکاری مؤثر با معماران، مهندسان سازه، متخصصان نورپردازی و سایر اعضای تیم است.
دانشجویان در این دوره آموزشی مهارتهای لازم برای ارزیابی و بررسی
نقشههای فاز دو معماری را بدست میآورند. این شامل توانایی
شناسایی اشکال و ایرادات ممکن در نقشهها، ارزیابی صحت و کیفیت
نقشهها و تصمیمگیری در خصوص بهبود آنها است.
با توجه به این مهارتها و تواناییها، دانشجویان پس از طی کردن
دوره آموزش تهیه نقشههای فاز دو معماری در آموزشگاه کامپیوتر
مهرگان اصفهان، قادر به انجام فعالیتهای مرتبط با تهیه و اجرای
نقشههای فاز دو خواهند بود و میتوانند در صنعت معماری و ساختمانی
به عنوان یک متخصص فاز دو معماری مشغول به کار شوند.
از آن جا که یادگیری نرم افزار بدون انجام تمرینات و پروژه های عملی امکان پذیر نمی باشد آموزش این دوره مبتنی بر روش TPH خواهد بود.
مباحث دوره به اختصار به شرح زیر می باشد :
نظرات شرکت کنندگان دوره تهیه نقشه های فاز 2 معماری
4.0(1 نفر)
راه های ارتباط با ما
03136292828(10 خط)
ثبت نام12 الی 14
حسابداری16
برنامه ریزی آموزش11
انتشارات17
دفتر فنی20
انجام پروژه22
روابط عمومی24
اصفهان - بلوار ملت - حدفاصل پل آذر و سی و سه پل - مجتمع آموزشی مهرگان